- Woonoppervlakte
- Circa 104 m²
- Perceeloppervlakte
- Circa 277 m²
- Bouwjaar
- Gebouwd in 1961
- Aantal kamers
- 4 kamers (3 slaapkamers)
Ruim uitgebouwde en uitstekend onderhouden, volledig geïsoleerde en verduurzaamde woning met grote garage – op steenworp afstand van het centrum!
Woonoppervlakte: 104 m²
Inhoud: 390 m³
Perceeloppervlakte: 277 m²
________________________________________
OMSCHRIJVING
Deze verrassend ruime en uitstekend onderhouden woning uit 1961 is door de jaren heen flink gemoderniseerd en verduurzaamd. In 2000 is de woning over de volle breedte aan de achterzijde uitgebouwd, wat heeft geleid tot een royale leefruimte. Bovendien is er een grote dakkapel geplaatst op de eerste verdieping, waardoor er extra ruime slaapkamers zijn ontstaan.
De woning is volledig geïsoleerd, beschikt over 10 zonnepanelen, een nieuwe keuken met vloerverwarming, een moderne badkamer met vloerverwarming én een ruime garage met zolder, voorzien van een elektrisch bedienbare kanteldeur.
Meer zien? Bekijk de uitgebreide presentatie op: Burgemeesterborgerstraat33.nl (knip en plak dit adres in uw browser)
Liever eerst digitaal rondkijken? Maak gebruik van de 360°-tour onder de foto’s en wandel virtueel door de woning — zo ontdekt u elke ruimte tot in detail!
________________________________________
OMGEVING
De woning ligt in een rustige en gezellige straat, direct grenzend aan het centrum van het sfeervolle brinkdorp Roden. Dit levendige Drentse dorp biedt een breed scala aan winkels, supermarkten, horecagelegenheden en sportvoorzieningen, omgeven door prachtige natuur.
Groningen en Assen zijn binnen respectievelijk 15 en 20 minuten bereikbaar. Ook is er een uitstekende busverbinding richting Groningen, die meerdere keren per uur rijdt – ideaal voor forenzen!
________________________________________
INDELING
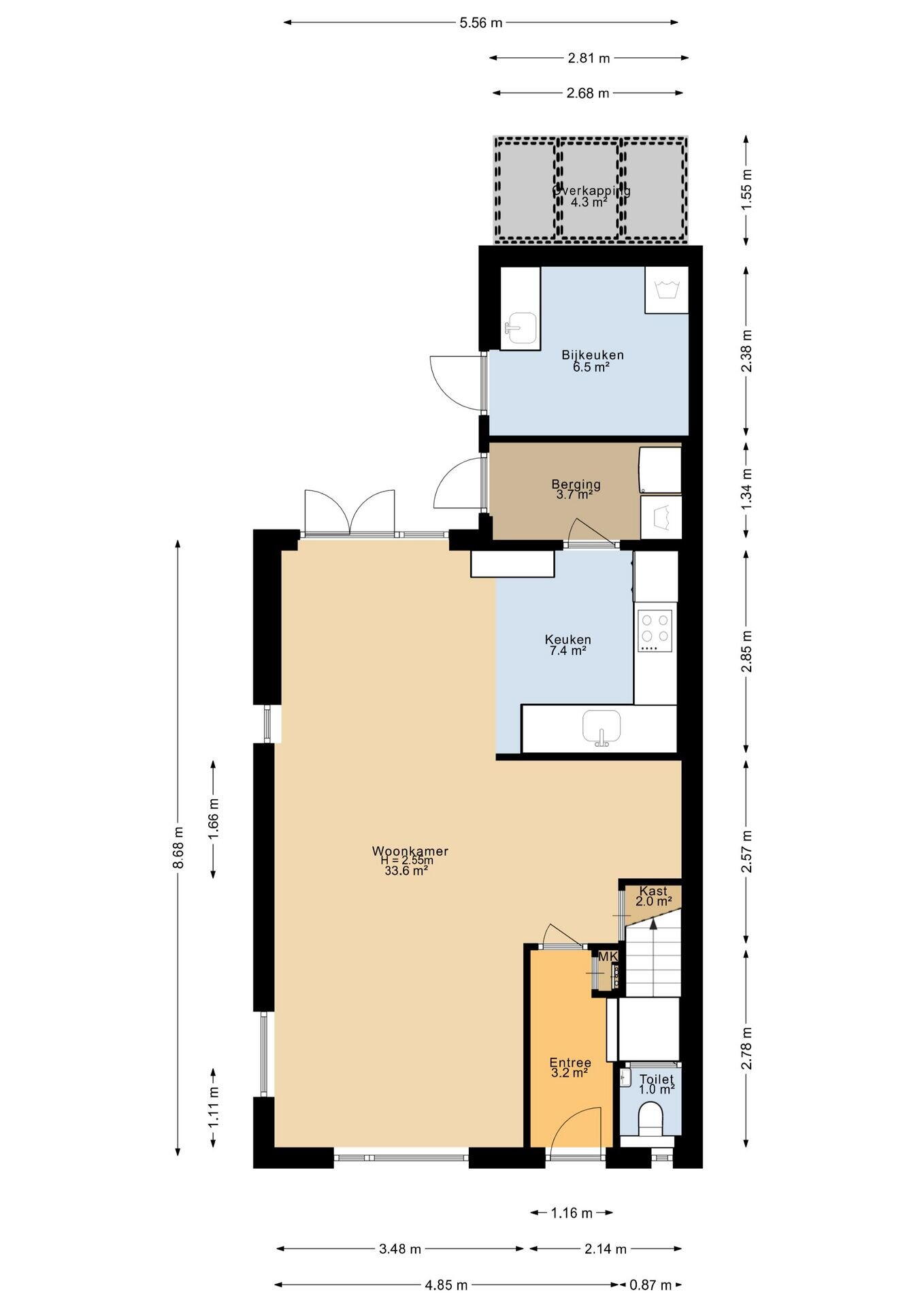
Begane grond
Ruime hal/entree met toilet en toegang tot de kelder. De straatgerichte woonkamer loopt vloeiend over in de tuingerichte woonkeuken (samen ca. 41 m²), voorzien van openslaande deuren naar de tuin. Vanuit de keuken bereikt u de eerste bijkeuken met achteringang, direct grenzend aan een tweede bijkeuken/berging.
Eerste verdieping
Overloop met toegang tot drie slaapkamers van ca. 7 m², 10,5 m² en 15 m². Luxe, in 2020 vernieuwde badkamer met inloopdouche, tweede toilet en modern wastafelmeubel.
Tweede verdieping
Via een vlizotrap bereikt u een praktische bergzolder
Tuin
In de besloten en zonnige achtertuin geniet u in alle rust van de middag- en avondzon. De tuin is volledig omsloten en biedt veel privacy.
Let op: de tweede bijkeuken is – in afwijking van het meetrapport – wel meegeteld in het vermelde woonoppervlak.
________________________________________
BIJZONDERHEDEN
• Moderne keuken met inbouwapparatuur (2017)
• Achterzijde uitgebouwd (2000)
• Luxe badkamer met vloerverwarming (2020)
• Volledig geïsoleerd (vloer, dak, gevel)
• HR++ beglazing
• HR CV-ketel (2019)
• 10 zonnepanelen
• Waterontharder
• Grote garage met zolder en elektrische kanteldeur
• Vloerverwarming in de keuken en de badkamer
• Nieuwe dakpannen
Onze foto’s zijn bewust gemaakt met een standaardlens (geen groothoek), zodat u een realistisch en eerlijk beeld krijgt van de ruimtes – precies zoals u deze tijdens een bezichtiging zult ervaren.
Wilt u nog beter inzicht? Maak dan gebruik van de digitale rondleiding en ontdek deze woning tot in detail. Lees de volledige omschrijving
Overdracht
- Vraagprijs
- € 369.000 k.k.
- Status
- Verkocht onder voorbehoud
- Aanvaarding
- In overleg
Bouw
- Object type
- Eengezinswoning, hoekwoning
- Soort bouw
- Bestaande bouw
- Bouwjaar
- 1961
- Soort dak
- Zadeldak bedekt met pannen
Oppervlakte en inhoud
- Woonoppervlakte
- 104 m²
- Perceeloppervlakte
- 277 m²
- Inhoud
- 390 m³
- Externe bergruimte
- 27 m²
- Gebouwgeb. buitenruimte
- 4 m²
Indeling
- Aantal kamers
- 4 kamers (3 slaapkamers)
- Aantal badkamers
- 1 badkamer en 1 apart toilet
- Badkamervoorzieningen
- Douche, toilet, wastafel, en wastafelmeubel
- Aantal woonlagen
- 2 woonlagen
- Voorzieningen
- Buitenzonwering, glasvezelkabel, natuurlijke ventilatie, en zonnepanelen
Energie
- Energielabel
- B
- Energielabel registratie
- 10-10-2025
- Isolatie
- Dakisolatie, dubbel glas, muurisolatie, vloerisolatie en volledig geïsoleerd
- Verwarming
- Cv-ketel
- Warm water
- Cv-ketel
- Cv ketel
- Remeha avanta (gas gestookt combiketel uit 2019, eigendom)
Buitenruimte
- Ligging
- Aan rustige weg, in bosrijke omgeving en in woonwijk
- Tuin
- Achtertuin, voortuin en zijtuin
- Afmetingen achtertuin
- 70 m² (13,00 meter diep en 9,00 meter breed)
Garage
- Soort garage
- Parkeerplaats en vrijstaande stenen garage
- Capaciteit
- 2 auto's
- Voorzieningen
- Elektrische deur
Parkeergelegenheid
- Soort parkeergelegenheid
- Op eigen terrein en openbaar parkeren
Energieverbruik in Roden
Energielabel deze woning
Energielabel B
Publicatie energielabel: 10-10-2025
Stroomverbruik per jaar
(Gemiddelde hoekwoning in Roden)
Gasverbruik per jaar
(Gemiddelde hoekwoning in Roden)
* Cijfers zijn afkomstig van het CBS en bedoeld als indicatie en kunnen verschillen voor deze woning
Indicatie hypotheeklasten
Eigen inleg:
Spaargeld / overwaarde
Rente:
Laagste 10-jaars rente
Laagste 10-jaars rente
2,88% - Woonfonds Groen Woonge... - NHG
3,1% - Argenta Groen Hypotheek... - 80%
Laagste 20-jaars rente
3,19% - Centraal Beheer Groen... - NHG
3,47% - Argenta Groen Hypothee... - 80%
Laagste 30-jaars rente
3,34% - Centraal Beheer Groen... - NHG
3,64% - Argenta Groen Hypothee... - 80%
Hypotheek:
Bruto maandlasten: € 0 p/m
Netto maandlasten: € 0 p/m
Hoe berekenen we dit?
Het rentepercentage is gebaseerd op de laagste 10 jaars vaste rente voor één hypotheekdeel. De vermelde rente (2.88% met NHG) is gecontroleerd op 08-12-2025. Deze berekening is gebaseerd op een annuïteitenhypotheek die volledig wordt afgelost, waarbij de maandlasten gedurende de gehele looptijd gelijk blijven. De werkelijke rente en netto maandlasten kunnen variëren, afhankelijk van uw persoonlijke situatie en de hypotheekverstrekker. Raadpleeg een financieel adviseur voor een nauwkeurige berekening en advies. Aan deze berekening kunnen geen rechten worden ontleend; het dient enkel als indicatie.
Documentatie
Kadastrale kaart
Leefomgeving
Plattegronden PDF
WOZ waarderapport
BAG uittreksel
Brochure
Bezoek onze website
Bezichtiging
Bod uitbrengen
Waardebepaling
Zoekopdracht
Alles downloaden
Zonnegrenzen bekijken
Op de kaart
Inwoners in Roden
Cijfers voor postcodegebied 9301
- Totaal aantal inwoners
- 11310 inwoners
- Mannen
- 48%
- Vrouwen
- 52%
Inwoners in Roden
Cijfers voor postcodegebied 9301
- tot 15 jaar
- 14%
- 15 tot 25 jaar
- 9%
- 25 tot 35 jaar
- 18%
- 45 tot 65 jaar
- 26%
- 65 en ouder
- 34%
Huishoudens in Roden
Cijfers voor postcodegebied 9301
- Eenpersoons zonder kinderen
- 35%
- Meerpersoons zonder kinderen
- 37%
- Huishoudens zonder kinderen
- 72%
Huishoudens in Roden
Cijfers voor postcodegebied 9301
- Huishoudens met één kind
- 7%
- Huishoudens met meerdere kinderen
- 21%
- Huishoudens met kinderen
- 28%
Woningen in Roden
Cijfers voor postcodegebied 9301
- Woningen voor 1945
- 3%
- Woningen tussen 1945 en 1965
- 15%
- Woningen tussen 1965 en 1975
- 44%
- Woningen tussen 1975 en 1985
- 14%
- Woningen tussen 1985 en 1995
- 10%
Woningen in Roden
Cijfers voor postcodegebied 9301
- Woningen tussen 1995 en 2005
- 8%
- Woningen tussen 2005 en 2015
- 4%
- Woningen na 2015
- 2%
- Huurwoningen
- 40%
- Koopwoningen
- 60%
Overige in Roden
Cijfers voor postcodegebied 9301
- Gemiddelde WOZ waarde
- € 217.000,-
- Personen onder de 65 met uitkering
- 8%
Overige in Roden
Cijfers voor postcodegebied 9301
- Adressen per km²
- 1126
- Stedelijkheid (schaal 1 op 5)
- 60%
Welkom bij Peter’s Makelaardij
Uw betrouwbare partner in onroerend goed in Roden en omstreken. Sinds 1986 is ons kantoor gevestigd aan de Brink 37 in Roden, waar onze ervaring en kennis van de lokale markt samenkomen om u optimaal te begeleiden bij het kopen, verkopen of huren van een woning.
Onder leiding van Peter Brandsma, die in 1995 het stokje overnam van zijn vader Cor, hebben wij een rijke historie opgebouwd in de makelaardij. Met meer dan 35 jaar ervaring is Peter niet alleen een deskundige makelaar, maar ook een betrokken adviseur die zich volledig inzet voor zijn klanten. Hij staat bekend om zijn no-nonsense aanpak en zijn vermogen om elke woning effectief in de markt te zetten voor de best haalbare prijs.
Bij Peter’s Makelaardij geloven we dat maatwerk essentieel is. Elke woning is uniek en vergt een eigen strategie. Daarom begint ons proces altijd met een vrijblijvend kennismakingsgesprek om uw wensen in kaart te brengen. Ons team, bestaande uit ervaren professionals zoals Germa Bijholt en Gerben de Vries, staat klaar om zowel bij de verkoop als bij de aankoop van uw woning te ondersteunen.
Onze klanten waarderen ons werk enorm, zoals blijkt uit een gemiddelde beoordeling van 9.2 uit 10 op Funda en Google. Wij zijn er trots op dat cliënten ons kenmerken als deskundig, vriendelijk en altijd bereikbaar. Wilt u samen met ons aan uw woonwensen werken? Neem gerust contact op voor meer informatie of schrijf u in om op de hoogte te blijven van ons nieuwste aanbod. Peter’s Makelaardij - uw makelaar in Roden!
Nieuwste reviews
-
Helterbult 6
Super fijn om samen te werken met deze makelaar. Eerlijk, betrouwbaar en betrokken medewerkers. Zeer tevreden
-
Karspel 7
Medewerkers van deze makelaar zijn vriendelijk en resultaat gericht, duidelijke communicatie, snelle reactie op vragen, goed recept voor suc...
-
T. Zondagstraat 6
Prima contact, zakelijk en “to the point”. Kan zich goed inleven en reageert snel, ook naar potentiële kopers. Fotograaf verzorgt prima foto...